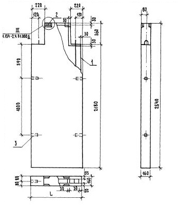
СБ-9.26.1-т-4
Характеристики изделия:
| Параметр | Значение |
|---|---|
| Длина | 880 мм |
| Ширина | 160 мм |
| Высота | 2540 мм |
| Масса | 830 кг |
| Нормативный документ | Серия 1.134-2 |
Цена:
Рассчитать стоимостьБлоки внутренних стен толщиной 16 см и вентялиционные блоки для жилых зданий высотой 1-4 этажа и общественных зданий высотой 1-3 этажа по Серии 1.134-2.
СБ-9.26.1-т-4 Стеновой блок.