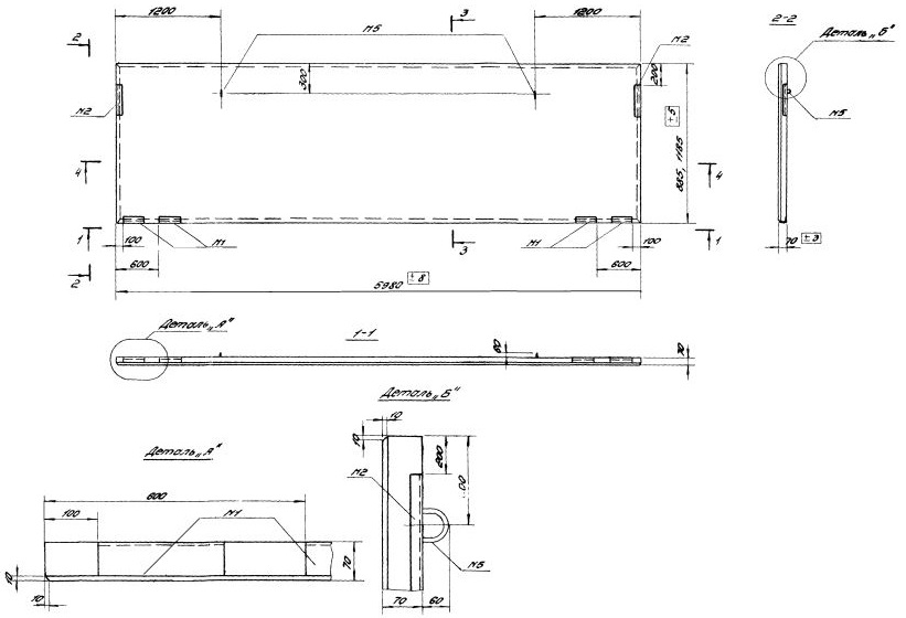
ПСЛН 0,9-6-711
Характеристики изделия:
| Параметр | Значение |
|---|---|
| Длина | 5980 мм |
| Ширина | 70 мм |
| Высота | 885 мм |
| Масса | 710 кг |
| Нормативный документ | Серия 1.432-10 |
Цена:
Рассчитать стоимостьСборные предварительно напряженные стеновые панели из легких бетонов для неотапливаемых промышленных зданий по Серии 1.432-10.
ПСЛН 0,9-6-711 Парапетная панель, армированная сталью Вр-II.